Bài 34. Triển khai hồ sơ chi tiết công trình (Phần 3)
Trong bài học này học viên sẽ nắm được tổng thể các quy trình triển khai bản vẽ kiến trúc mặt bằng, mặt đứng, mặt cắt kiến trúc và các khung tên bản vẽ chi tiết cho toàn bộ các hạng mục công trình.
Nắm được cách trình bày triển khai hoàn thiện hồ sơ.
Nắm được các lệnh công cụ triển khai nhanh cũng như nắm vững về kiến thức chuyên môn.
VIDEO HỌC THỬ (XEM TRƯỚC)
Video xem trước bài 34
Trong bài học này học viên sẽ nắm được tổng thể các quy trình triển khai bản vẽ kiến trúc mặt bằng, mặt đứng, mặt cắt kiến trúc, và các khung tên bản vẽ chi tiết, cho toàn bộ các hạng mục công trình.
Nắm được cách trình bày triển khai hoàn thiện hồ sơ.
Nắm được các lệnh công cụ triển khai nhanh, cũng như nắm vứng về kiến thức chuyên môn

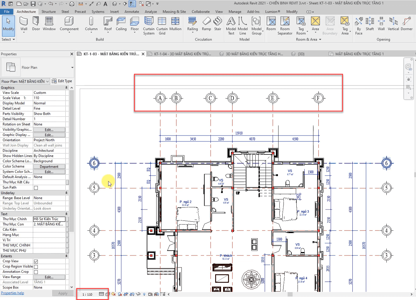
-Triển khai mặt bằng kiến trúc tầng 2:
-Tạo các sheet mới cho các view bản vẽ mặt bằng kiến trúc tầng 2.

-Sau đó đổi tên các sheet thành tên bản vẽ mình mong muôn

-Kéo các view bả vẽ vào sheet
-Tiến hành ẩn các đối tượng không cần thiết , tiến hành DIM, ĐẾN TAG, ĐÁNH cao độ nền, ghi chú phòng cho mặt bằng
-Để ẩn đối các đối tượng không cần thiết, t chọn VG,rồi tích bỏ các catergory. Không cần hiện thị trên mặt bằng Vd như , hàng rào cây cối, xe ./….
– cách chọn thủ công là chọn đối tượng và ấn tổ hợp phim EH.
-Tiến hành Dim , trước khi dim phải chỉnh tỉ lệ và chế độ hiện thị và chỉnh view nằm chính giữ bản vẽ.

– Chỉnh cropview và dim từ tim đến tim TƯỜNG ,

-Dim 3 lớp. lớp 1: dim chi tiết ô cửa , ..
Lớp 2: dim lưới trục công trình.
Lớp 3 : dim kích thước tổng,

-Lưu ý: nhưng bức tường không đi qua trục, để phân chi phòng, và các bức tường âm để dim khoảng cách tránh thiếu sót.
-Tạo view 3D cho mặt bằng kiến trúc tầng 2
-Dupluicate view 3D mặt bằng kiến trúc tầng hầm để tạo ra 1 view mới.c

-Chọn khối box góc phải màn hình chọn Foor plan> chọn mặt bằng kiến trúc tầng 2.

-Chỉnh section box để có view nhìn 3d tổng thể mặt bằng kiến trúc tầng 2.

-Sau đó kéo vào sheet , 3D mặt bằng kiến trúc tầng 2.
ĐĂNG KÝ KHÓA HỌC NGAY TẠI ĐÂY
